旧与那国家住宅(国指定重要文化財)
旧与那国家住宅
(国指定重要文化財)
沿 革
旧与那国家住宅は大正2年に建築され、フーヤ(母屋)を中心に戦前までに整えられた竹富島の住居形態と生活様式を示す代表的民家です。
母屋である「フーヤ」と台所棟である「トーラ 」を並べた分棟型の住宅で、「フーヤ」は沖縄地方の伝統的な間取りで、正面には石積みの「マイヤシ」が立ち、宅地周辺に「グック 」と呼ばれる石垣を巡らされています。
旧与那国家住宅は、竹富町竹富島伝統的建造物群保存地区の核となる住宅で、竹富島における近代の住居形態と生活様式を理解するうえで、高い価値があるとして、国内最西端の重要文化財建造物に指定されています。(指定年月日:平成19(2007)年12月4日 指定番号:建第2520号)
沿 革
旧与那国家住宅は大正2年に建築され、フーヤ(母屋)を中心に戦前までに整えられた竹富島の住居形態と生活様式を示す代表的民家です。
母屋である「フーヤ」と台所棟である「トーラ 」を並べた分棟型の住宅で、「フーヤ」は沖縄地方の伝統的な間取りで、正面には石積みの「マイヤシ」が立ち、宅地周辺に「グック 」と呼ばれる石垣を巡らされています。
旧与那国家住宅は、竹富町竹富島伝統的建造物群保存地区の核となる住宅で、竹富島における近代の住居形態と生活様式を理解するうえで、高い価値があるとして、国内最西端の重要文化財建造物に指定されています。(指定年月日:平成19(2007)年12月4日 指定番号:建第2520号)
アクセス
■竹富東港より
・徒歩:約15分
・バス:仲筋井戸(最寄りバス停)まで約5分
・タクシー:約5分
アクセス
■竹富東港より
・徒歩:約15分
・バス:仲筋井戸(最寄りバス停)まで約5分
・タクシー:約5分
入館料/開館時間
現在作成中
入館料/開館時間
現在作成中
注意事項
①敷地内での喫煙、または火気を使用しないこと。
②建物その他の物件を汚損し、またはき損する行為をしないこと。
③施設内へは靴やビーチサンダルを脱いでから入ること。
④ゴミは持ち帰ること。
※当施設は重要文化財のため、バリアフリー化がなされておりません。車椅子での観覧には介助者が必要となりますので、あらかじめご了承ください。
注意事項
①敷地内での喫煙、または火気を使用しないこと。
②建物その他の物件を汚損し、またはき損する行為をしないこと。
③施設内へは靴やビーチサンダルを脱いでから入ること。
④ゴミは持ち帰ること。
※当施設は重要文化財のため、バリアフリー化がなされておりません。車椅子での観覧には介助者が必要となりますので、あらかじめご了承ください。
お問合せ
所有者:竹富町
管理者:一財)竹富島地域自然資産財団
問合せ:0980-85-2800(竹富島地域自然資産財団)
0980-87-6257(竹富町教育委員会)
注意事項
所有者:竹富町
管理者:一財)竹富島地域自然資産財団
問合せ:0980-85-2800(竹富島地域自然資産財団)
0980-87-6257(竹富町教育委員会)
施設の配置
施設の配置

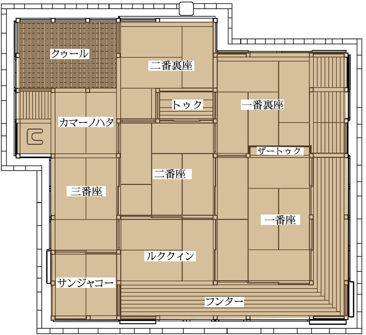
建物内の名称と使い方(フーヤ)
建物内の名称と使い方(フーヤ)

一番座
旧与那国家住宅では東側が上座となりますので、一番座はもっとも格の高い部屋で、来客者を招く応接間の役割を果たします。また、神事は一番座で行います。「ザートゥク」とは床の間のことです。
二番座
仏壇が安置される部屋で、仏事はこの座で行われます。親戚などの客間としても利用されていました。二番座の奥にある「トゥク」とは仏壇のことです。
三番座
旧与那国家住宅では西側が下座となります。三番座は日常生活を過ごす部屋として使われていました。
一番裏座
家主の寝室です。竹富島ではヨーと呼ばれます。
二番裏座
家主の父母の寝室です。
フンター
縁側のことです。「踏み板」の訛り語と言われています。昔はこのフンターで機織りをする風景がよく見られました。
ルククィン
子供達の寝室です。賓客を招いた際に、従者がくつろぐ座として利用されていました。
サンジャコー
旧与那国家住宅は、要人が多く訪れる屋敷でした。家のお手伝いさんを待機させる座として使われていました。ルククィンとサンジャコーがある屋敷は、竹富島でも数少ない屋敷といえます。
カマーノハタ
家主がお茶を淹れる小さな竃が置かれています。竹富島の屋敷は火を扱う炊事場は別棟となりますが、旧与那国家住宅では要人が多数訪れるため、すぐにお茶を提供できるようにカマーノハタが置かれていたと考えられています。
クゥール
食料を保管する貯蔵庫です。

HOME